Nybygget hus i Ølgod – 120 m² bolig i ét plan med garage, carport og udestue
Nybygget hus i Ølgod – 120 m²
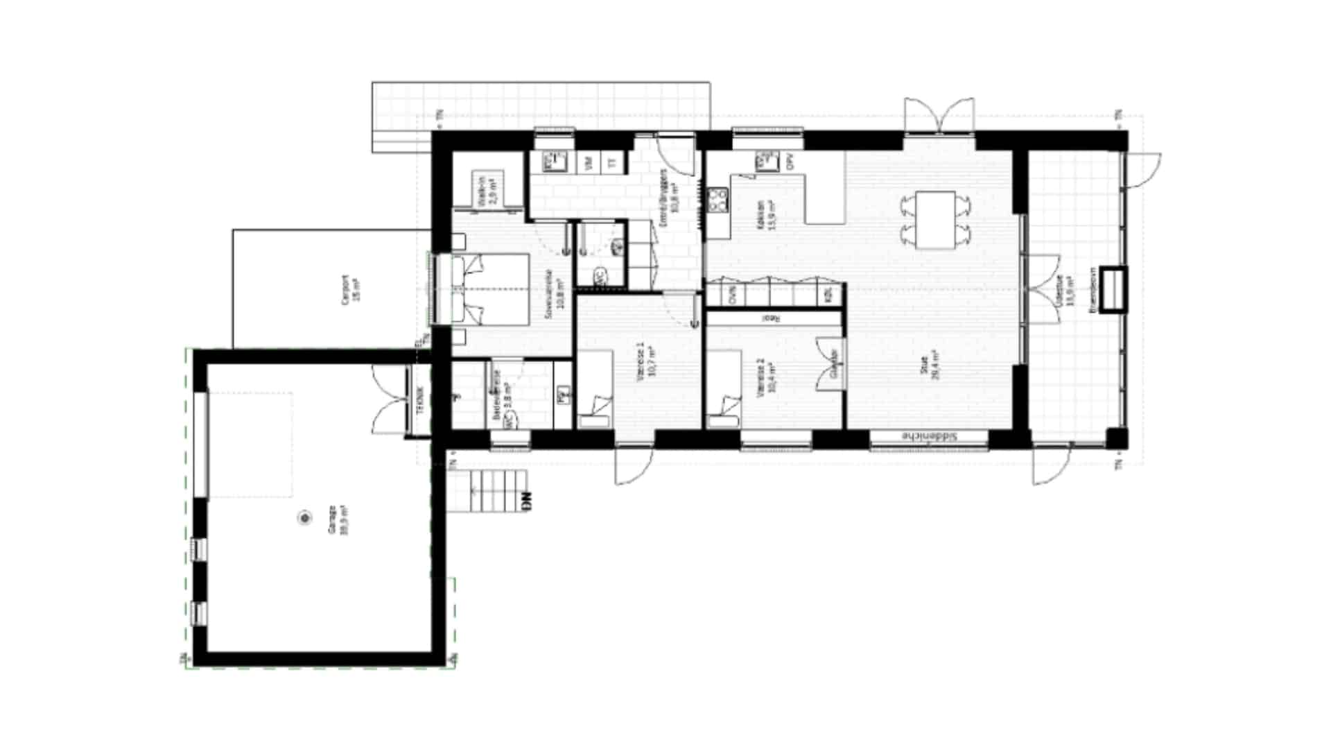
Drømmer du om et moderne nybygget hus i Ølgod. Denne bolig i ét plan byder på 120 m² veldisponeret beboelse kombineret med praktiske og funktionelle løsninger.
Huset rummer en lys og indbydende boligdel på 120 m² samt en skøn udestue på 20 m², der forlænger opholdsrummet og skaber direkte forbindelse til haven. Til ejendommen hører desuden en rummelig garage på 50 m² i forskudt plan, perfekt til både bil og opbevaring, samt en carport på 15 m² til ekstra parkeringsmulighed.
Dette hus i Ølgod kombinerer moderne komfort, god planløsning og ekstra kvadratmeter til både hverdag og fritid. Her får du et nybyggeri tilpasset familiens behov – med både garage, carport og udestue som gør hverdagen nemmere og mere fleksibel.

Eunice Steenberg Hansen
Indehaver
Bygningskonstruktør & Brandrådgiver

Jesper B. Pedersen
Bygningskonstruktør

Anders Eg Knudsen
Bygningskonstruktør

Jesper Kviesgaard
Bygningskonstruktør



