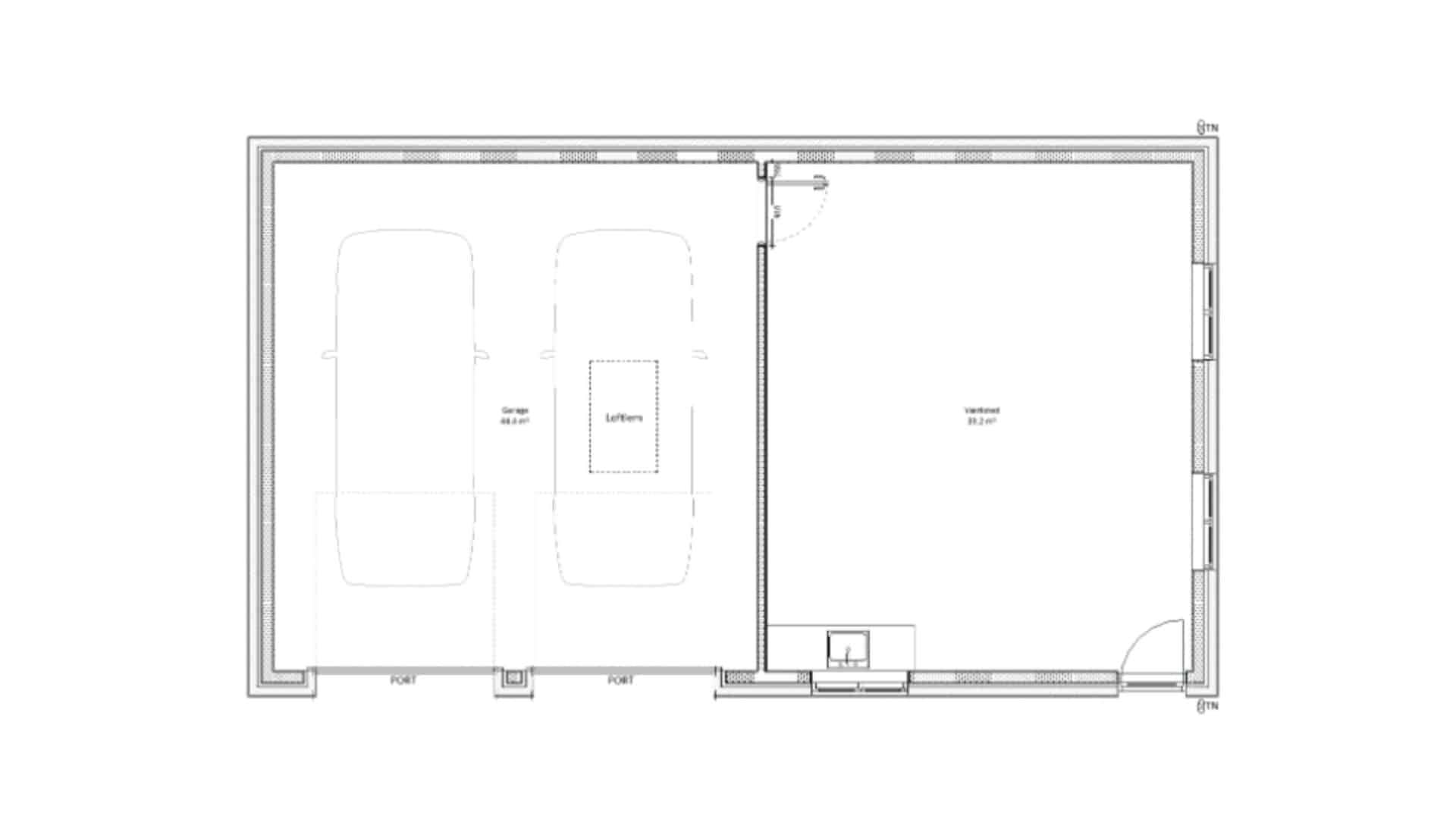
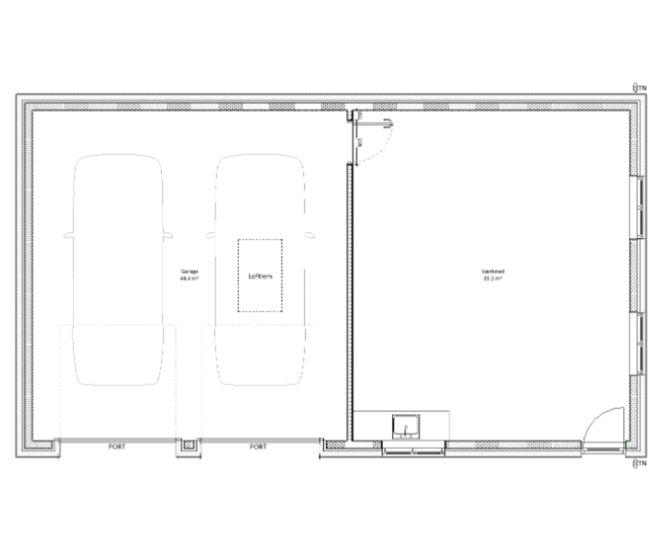
Jernbanegade 1 - Funktionel og tidløs garage i klassisk design
Denne garage på 97,4 m² kombinerer praktisk funktionalitet med æstetisk tiltalende arkitektur.
Bygningen er designet med to store garageporte, der giver nem adgang for køretøjer, samt integreret udhus med separat indgang, som også er tilpasset den eksisterende bolig.
Denne alsidige bygning er perfekt til:
- Opbevaring af køretøjer
- Værksted og hobbyrum
- Lagerplads i udhuset
- Kombineret bil- og opbevaringsløsning
Den gennemtænkte planlægning sikrer maksimal udnyttelse af de 97,4 m² med både praktisk funktionalitet og æstetisk appel.

Eunice Steenberg Hansen
Indehaver
Bygningskonstruktør & Brandrådgiver

Jesper B. Pedersen
Bygningskonstruktør

Anders Eg Knudsen
Bygningskonstruktør

Jesper Kviesgaard
Bygningskonstruktør



