Nyt stuehus i Grindsted – 165 m² bolig med 240 m² udhus
Nyt stuehus i Grindsted – 165 m² bolig med 240 m² udhus
Leder du efter en moderne landejendom i Grindsted eller omegn? Her får du et helt nyt stuehus på 165 m² med en stor og funktionel hal på 240 m² – den ideelle kombination af bolig og plads til arbejde, opbevaring eller fritid.
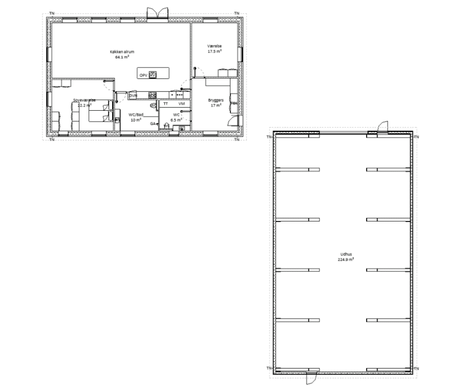
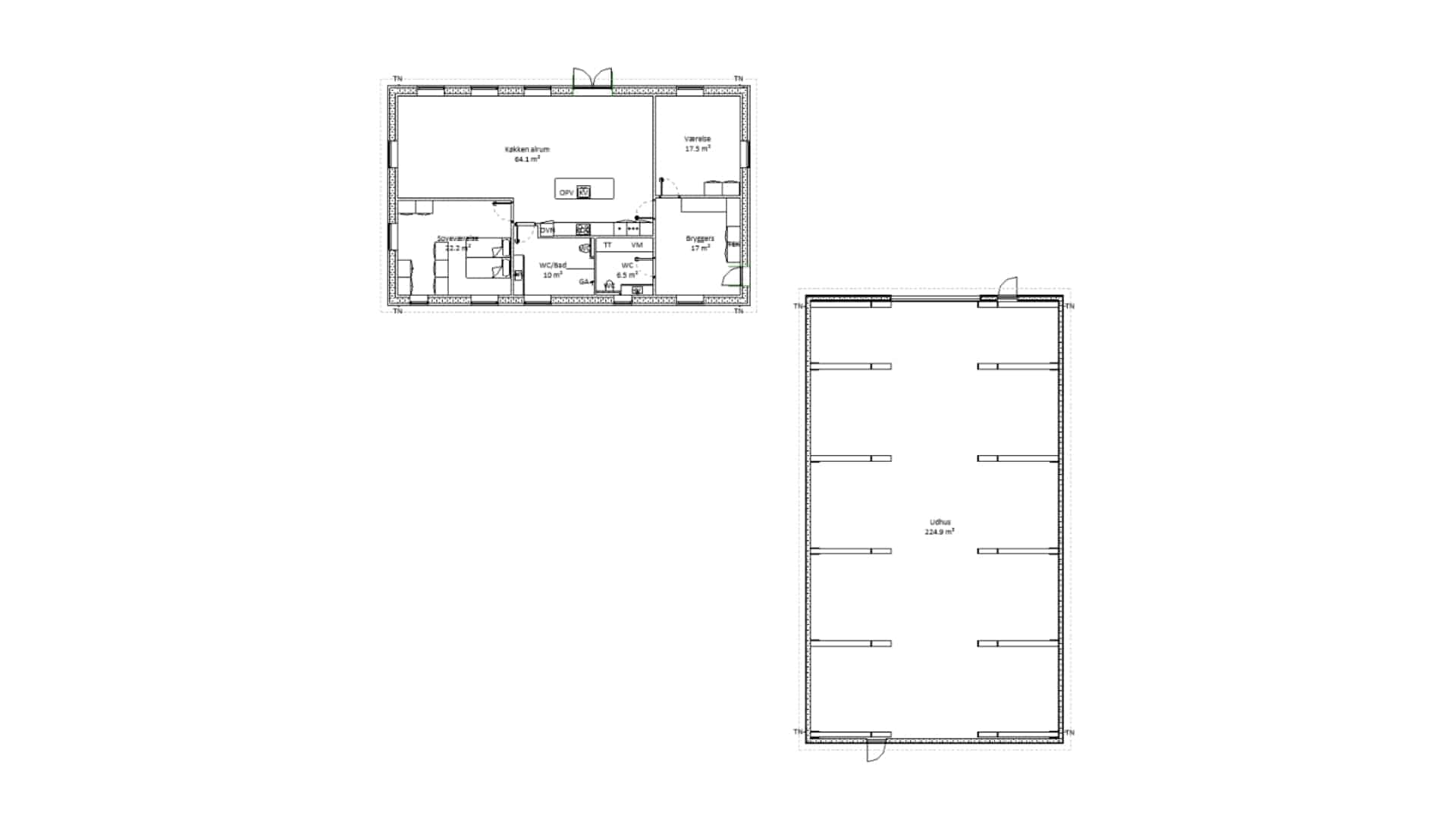
Moderne stuehus med gennemtænkt planløsning.
Huset er tegnet med fokus på komfort og funktionalitet:
- Stort og lyst køkken-alrum på 64 m² med køkkenø og direkte udgang til have/terrasse.
- Rummeligt soveværelse med adgang til eget badeværelse.
- Ekstra værelse på 17,5 m², velegnet som børneværelse, kontor eller gæsteværelse.
- Praktisk bryggers på 17 m² med vaskefaciliteter og god opbevaringsplads.
- To badeværelser på henholdsvis 10 m² og 6,5 m².
Med store vinduespartier og en åben indretning får du et hjem med masser af lys og luft.
Udhus på 240 m²
Til ejendommen hører et udhus på 240 m², der giver dig uanede muligheder:
- Opbevaring af maskiner, biler eller campingvogn
- Værksted eller hobbyrum
- Plads til mindre erhverv eller lager
Hallen er fleksibelt indrettet og kan tilpasses præcis dine behov.
Bolig og erhverv i Grindsted
Denne ejendom er et oplagt valg for dig, der ønsker at kombinere bolig og erhverv i Grindsted – eller blot have ekstra plads til fritidsinteresser. Her får du en moderne bolig i naturskønne omgivelser tæt på byens faciliteter.

Eunice Steenberg Hansen
Indehaver
Bygningskonstruktør & Brandrådgiver

Jesper B. Pedersen
Bygningskonstruktør

Anders Eg Knudsen
Bygningskonstruktør

Jesper Kviesgaard
Bygningskonstruktør



