Nyt stuehus i Skjern – 165 m² moderne bolig
Nyt stuehus i Skjern – 165 m² moderne bolig
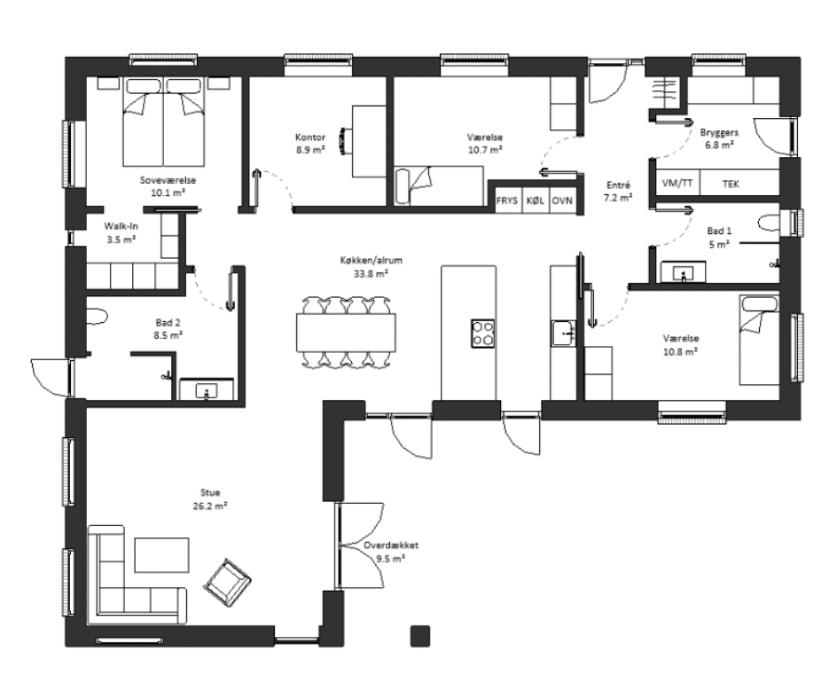
Drømmer du om et nybygget hus i Skjern? Her præsenteres et moderne stuehus på 165 m² med en gennemtænkt planløsning, hvor både funktionalitet og komfort er i fokus.
Boligens indretning
- Køkken/alrum på 33,8 m² med stor køkkenø og spiseplads – hjemmets naturlige samlingspunkt.
- Stue på 26,2 m² med adgang til overdækket terrasse.
- Soveværelse på 10,1 m² med tilhørende walk-in closet og direkte adgang til stort badeværelse.
- Tre gode værelser på ca. 10-11 m² – perfekte til børn, gæster eller kontor.
- Ekstra kontor på 8,9 m².
- To badeværelser (8,5 m² og 5 m²).
- Bryggers på 6,8 m² med vaskefaciliteter og teknikrum.
- Entré på 7,2 m² med god plads til garderobe.
Med store vinduespartier, et lyst køkkenalrum og åben forbindelse til stue, får du en moderne bolig med masser af dagslys og en praktisk indretning og tekniske løsninger som solceller som både kan have økonomiske og miljømæssige fordele.
Moderne familieliv i Skjern
Ejendommen er placeret i Skjern, tæt på byens faciliteter, skole og natur.
Det er den ideelle bolig for familien, der ønsker en ny og funktionel bolig i trygge rammer.

Eunice Steenberg Hansen
Indehaver
Bygningskonstruktør & Brandrådgiver

Jesper B. Pedersen
Bygningskonstruktør

Anders Eg Knudsen
Bygningskonstruktør

Jesper Kviesgaard
Bygningskonstruktør



